





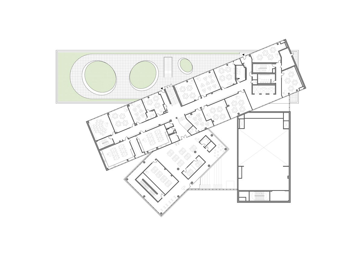
The Heights Building Site — The compact urban site is bounded by roads on three sides. Along 18th Street, the site shares a common edge with Rosslyn Highlands Park.

Site Objective — A vertical stack of classroom bars stretches across the center of the site, creating a protective barrier between the aesthetic field and the busy urban corridor of Wilson Boulevard.

Cascading Terraces — To create green space by the classrooms, the bars rotate around a single hinge point which creates 4 terraces from the education spaces to the recreation field. The first terrace is public when school is closed.

Public Spaces Towards Wilson — A generous lobby invites the public inside for community-oriented programs hosted throughout the building. The gymnasium and auditorium are centrally located to the lobby.

In-Between Spaces — Larger communal spaces, incl. cafeteria, library, and music rooms are easily accessible from the central space. The library is above the gym and the music rooms are above the theater.

Manipulated Ground Plane — The ground plane manipulations create circulation and daylight benefits for the school. Two sunken courtyards provide naturally lit outdoor spaces while the entrances serve as small public parks.

Rotating Stair Connection — A rotating staircase cuts through the interior to connect the four-tiered terraces, allowing students to circulate outside, forging a stronger bond between the neighborhood and the school.

Urban Terraced Landscape — The terraces provide different scales of activity, from large gatherings to class-size discussions, giving the opportunity for an urban school to have a 1-story feel.

Manipulated Ground Plane — The ground plane manipulations create circulation and daylight benefits for the school. Two sunken courtyards provide naturally lit outdoor spaces while the entrances serve as small public parks.














GROUND FLOOR PLAN

PLAN LEVEL 1

PLAN LEVEL 2

PLAN LEVEL 3

PLAN LEVEL 4

ROOF TOP PLAN



Bjarke Ingels
Daniel Sundlin
Beat Schenk
Thomas Christoffersen
Aran Coakley
Sean Franklin
Tony-Saba Shiber
Ji-Young Yoon
Adam Sheraden
Jan Leenknegt
Julie Kaufman
Kam Chi Cheng
Ricardo Palma Prieto
Shu Zhao
Terrence Chew
Ziad Shehab
Deb Campbell
Elnaz Rafati
Francesca Portesine
Amina Blacksher
Anton Bashkaev
Bennett Gale
Benson Chien
Cadence Merrie Bayley
Cristian Lera Silva
Daisy Zhong
Douglass Alligood
Elena Bresciani
Evan Rawn
Ibrahim Salman
Jack David Gamboa
Janice Rim
Jin Xin
Ku Hun Chung
Maria Sole Bravo
Margherita Gistri
Mark Rakhmanov
Mateusz Rek
Maureen Rahman
Nicholas Potts
Pablo Costa Fraiz
Robyne Some
Romea Muryn
Saecheol Oh
Seth Byrum
Sidonie Muller
Simon David
Valentina Mele
Vincenzo Polsinelli
Zachary Walters
Benjamin Caldwell
Josiah Poland
Tammy Teng
American Institute of Steel Construction IDEAS2 National Award for Steel Construction in the $75-200 million category, 2021
DESIGNArlington Award of Excellence, 2019
Washington Building Congress Craftsmanship Award, Winner in Structural Steel Framing, 2019
American Planning Association National Capital Area Chapter Award, Outstanding Implemented Plan, 2018
Leo A Daly
Robert Silman Associates
Interface Engineering
Gordon
Theatre Projects
Jaffe Holden
Faithful+Gould
GHD
Hopkins Food Service
GeoConcepts
Haley Aldrich Inc.
The Sextant Group
Tillotson Design Associates
EHT Traceries
Lerch Bates
Sustainable Design Consulting