




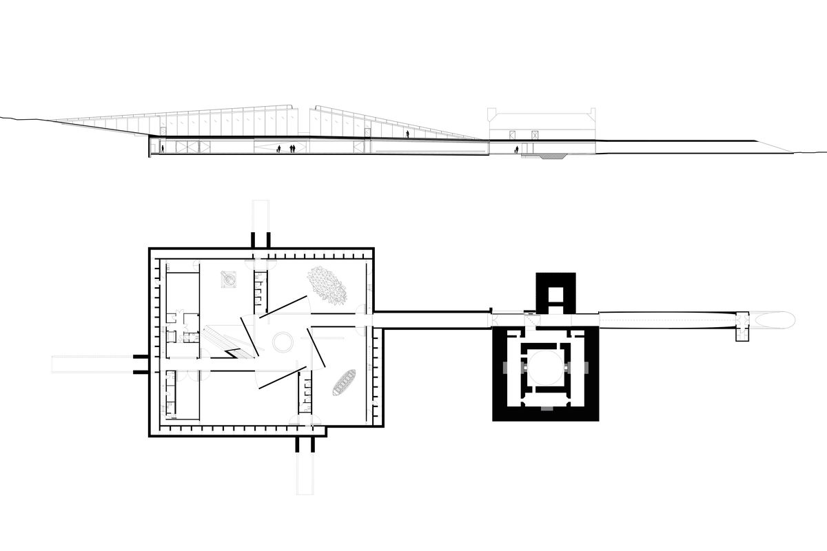
Sunken Void — Two paths intersect at the museum like surgical slices into the dunes. A sunken void is surrounded by the four galleries of the respective museums, bringing daylight and views to the buried spaces.

Preservation Loophole — The landscape is a nature preserve prohibiting construction, however one of the dunes is a remnant of a man-made berm. A loophole of opportunity in the paragraphs of preservation.

Four Museums — Next to the bunker, BIG was asked to design four museums in a single structure: a bunker, local history, amber and an art museum.

Paths — As the dune rises, the paths plow straight into the hill to allow access by foot.










"The new Tirpitz is planned, built, and furnished as a portal to the Danish West Coast’s treasure trove of hidden stories. It has been our goal to create a humble, world-class attraction surprising its visitors with new perspectives on the majestic landscape. Our guests deserve the best; with BIG’s limitless and inviting architecture and with Tinker Imagineers’ wondrous and playful exhibitions, I feel we have achieved this. TIRPITZ is an incredible, one-of-a-kind experience - violent, astonishing, dramatic, hidden - almost invisible.”Claus Kjeld Jensen - Director, Varde Museum





"The architecture of Tirpitz is the antithesis to the WWII bunker. The heavy hermetic object is countered by the inviting lightness and openness of the new museum. The galleries are integrated into the dunes like an open oasis in the sand - a sharp contrast to the Nazi fortress’ concrete monolith. The surrounding heath-lined pathways cut into the dunes from all sides descending to meet in a central clearing, bringing daylight and air into the heart of the complex. The bunker remains the only landmark of a not so distant dark heritage that, upon close inspection, marks the entrance to a new cultural meeting place."Bjarke Ingels - Founder & Creative Director, BIG



Bjarke Ingels
Finn Nørkjær
Jakob Lange
David Zahle
Andreas Klok Pedersen
Brian Yang
Frederik Lyng
Ole Elkjær-Larsen
Ryohei Koike
Jesper Boye Andersen
Adam Busko
Enea Michelesio
Geoffrey Eberle
Hanna Ida Johansson
Hugo Yun Tong Soo
Jakob Andreassen
Jan Magasanik
Marcella Martinez
Mikkel Marcker Stubgaard
Snorre Nash
Tobias Hjortdal
Alberte Danvig
Alejandro Mata Gonzales
Alina Tamosiunaite
Brigitta Gulyás
Charlotte Coco
Katarzyna Krystyna Siedlecka
Kyle Thomas David Tousant
Maria Teresa Fernandez Rojo
Michael Andersen
Michael Schønemann Jensen
Andrea Scalco
Tore Banke
Kristoffer Negendahl
Yehezkiel Wiliardy Manik
LCD Berlin Leading Culture Destinations of the Year Award, 2020
EU Mies van der Rohe Award, Nominee, 2019
AIA Institute Honor Awards for Architecture, 2019
Architizer A+ Awards Honoring the Best, Architecture, Spaces & Products, 2018
The Mermaid Prize, 2018
AIANY Design Awards, Honors Award for Architecture, 2018
World Architecture Festival, Best Culture Category Finalist, 2018
AKT
Lüchinger+Meyer
Tinker Imagineers
Fuldendt
Kloosterboer Décor
Svend Ole Hansen
Gade & Mortensen Akustik
Bach Landskab
Ingeniørgruppen syd
COWI
Kjæhr & Trillingsgaard
Pelcon
BIG Ideas