






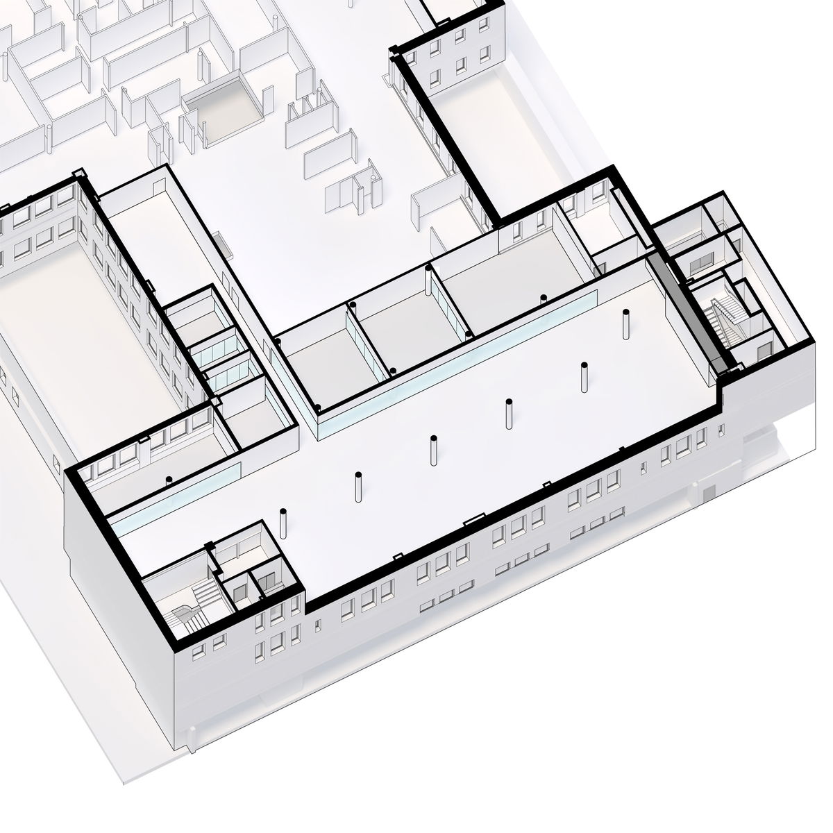
EXISTING CONDITION

CIRCULATION FLOW

WEGROW

CLASSROOMS

LEARNSCAPE

PROGRAM




“WeGrow was created to unleash the creative potential of all generations through design. With this first location in New York City, we have created a space to facilitate and accommodate WeGrow's transformative approach to learning because as life evolves, so should the framework in which we live in. Children realize they have agency and when design is less prescriptive and more intuitive - we don't have to tell kids how to use the space and every interpretation of how they use the space is good.”Daniel Sundlin - Partner, BIG



Bjarke Ingels
Daniel Sundlin
Beat Schenk
Otilia Pupezeanu
Rita Sio
Jeremy Babel
Francesca Portesine
Jakob Lange
Erik Kreider
Fabian Lorenz
Florencia Kratsman
Oliver Thomas
Terrence Chew
Tracy Sodder
Stephen Kwok
Deb Campbell
Ji-Young Yoon
Bart Ramakers
Bernard Peng
Douglass Alligood
Evan Saarinen
Filip Milovanovic
Il Hwan Kim
Mengzhu Jiang
Zakir Hamza
Josiah Poland
Ryan Yang
Thea Wiradinata
Tore Banke
Kristoffer Negendahl
Architizer A+ Awards Jury Winner - Kindergardtens, 2019
DrivenxDesign New York Design Awards, 2018
WeWork
Environetics Group Inc.
Cosentini Associates
William Vitacco Associates Ltd.
Digifabshop
Bednark Studio
Laufen
Ketra
Febrik