L
E
A
P
P

Houseboat Bukken Bruse

COPENHAGEN, DENMARK

Houseboat Bukken Bruse

COPENHAGEN, DENMARK

CLIENT

Private Client

TYPOLOGY

Residential

STATUS

COMPLETED

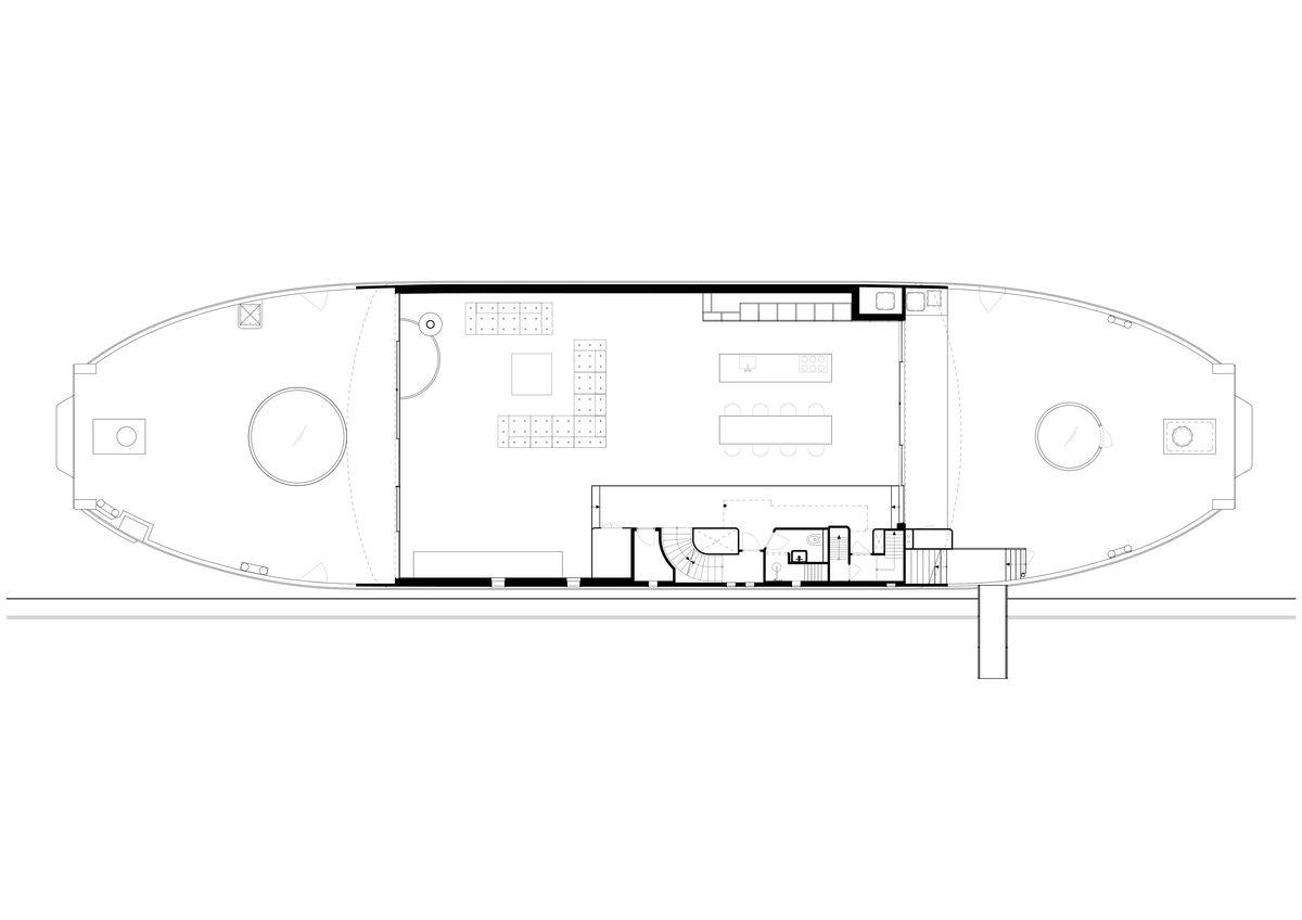
A decommissioned ferryboat, once used as a passenger ferry connecting Copenhagen with nearby islands and smaller towns around Denmark, has been transformed into a 126-ft-long floating family home in the historic harbor of Copenhagen.

 

In an effort to preserve the nautical features of the ferry and align with the structure’s original proportions, the renovation process focused on restoring symmetry along both axes.

At each end of the main deck, previously an open driveway for up to 25 cars, sliding window walls were installed, creating a loft-like living space with direct access to an outdoor terrace.

Inspired by the two large original chimney stacks and navigation bridges, a glass-enclosed pavilion was added to house the main bedroom suite, nestled among the original structures. Above it, a rooftop terrace offers 360-degree views of the harbor and city, including the Royal Palace.

 

The master bathroom features a hinoki cypress soaking tub, sink, and shower, inspired by traditional Japanese ryokans.

Descending below deck via a bright red stairwell, the basement has been transformed into a futuristic playroom for all ages, stripping away additions to reveal streamlined curves. Porthole windows and a circular skylight were added to let in natural light.

Bjarke Ingels Finn Nørkjær Andy Coward Cæcilie Søs Brandt-Olsen Dag Præstegaard Eva Seo-Andersen Hyojin Lee Ian Omumbwa Kamilla Heskje Richard John Burns